Этаж: Этаж -1
Площадь блока: 9 460 м²
Отделка:
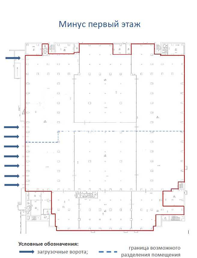
ОБЩАЯ ПЛОЩАДЬ МИНУС ПЕРВОГО ЭТАЖА 9 460 м 2 производственно-складская зона Аренда всего этажа площадью 9 460 м 2 Этажность помещения:-1 Высота потолков 6 метров Нагрузка на перекрытие 4,7 т / м Доки 8 шт. (3*3 м.) Готовое к использованию Пол наливной, стены сендвич панель и гкл , потолок в производственной части без подвесного потолка Инженерные сети Вентиляция, климатическое оборудование с поддержанием температурного режима от 18 до 23 С, центральные коммуникации, Сухой склад (+18)
Цена м² в месяц :1 300 р
Цена за склад в месяц :12 298 000 р
| Площадь |
| Вид помещения | Примечания | ||||
|---|---|---|---|---|---|---|---|
9460 м² | 201.24 903 406 914 | Этаж -1 | Назначить просмотр | ![]() | |||
Всего: 9460 м² | |||||||

Комиссию за все объекты платят
собственники при заключении
сделки

Организуем переговоры
собственника и покупателя

Гарантируем нашим клиентам
полную конфиденциальность

Проверяем юридическую чистоту сделки,
поможем с составлением договора
снять склады в Матушкино — 2 зданий и 2 офисов с блоками от 5300 до 9460 м²
снять склады округа Зеленоградский АО — 3 зданий и 3 офисов с блоками от 5300 до 50 000 м²

Договоримся с собственником о просмотре выбранного склада в удобное для вас время.
Подберем альтернативы к просмотру, если выбранный склад не подойдет.
Поможем заключить договор на взаимно выгодных условиях.

Наш специалист перезвонит Вам в течение 60 минут
